Geräumige 2 Zimmer Wohnung nahe Dahlen

- Dahlen/ Großböhla
- DG-Wohnung 55,79
- xx 55,79 m²
- 2 Zimmer
- 1 Schlafzimmer
- 1 Badezimmer
04774 Dahlen/ Großböhla
Die genaue Adresse teilen wir Ihnen auf Anfrage gerne mit.
Die 2-Raum Wohnung befindet sich am ruhigen Ortsrand von Großböhla, einem Ortsteil der Stadt Dahlen. Die Wohnung ist Teil eines Mehrfamilienhauses welches aus 3 Etagen besteht und 1995 erbaut wurde.
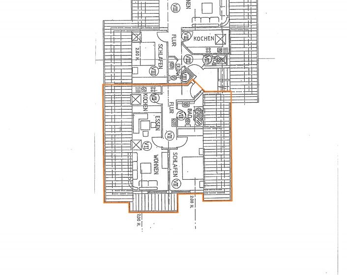
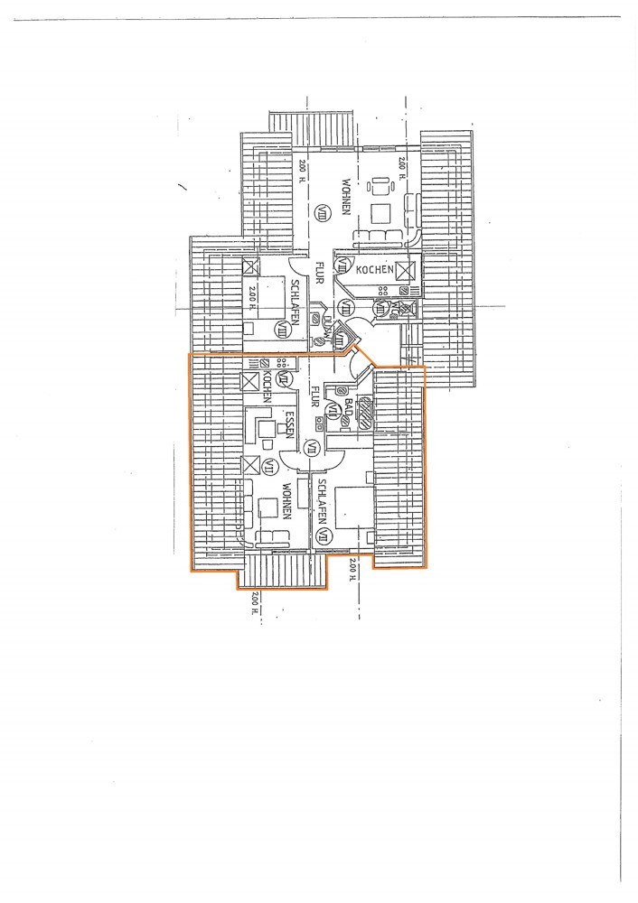
Die helle und praktisch geschnittene Wohnung liegt in der 3. Etage.
Sie teilt sich in ein geräumiges, helles Wohnzimmer, Bad und Küche sowie einem Schlafzimmer auf.
Vom Wohnzimmer aus, gelangt man auf den gemütlichen Balkon mit Blick auf die kleine Wohnsiedlung.
Zur Einheit gehören auch ein Kellerraum und zwei direkt am Haus gelegene Stellplätze.
Ein im Haus befindlicher Hauswirtschaftsraum wird gemeinschaftlich genutzt.
Die Wohnung wurde in den letzten Jahren saniert und ist in einem gepflegten Zustand.
Seit 1994 sind die Orte Großböhla, Kleinböhla und Neuböhla Stadtteile von der Heidestadt Dahlen. Jeder der drei Stadtteile hat seine kleine Geschichte und so manche Sehenswürdigkeit, die es zu entdecken gibt.
Mit seinen vielen Teichen, seinen verschlungenen Wegen, seiner interessanten Flora und Fauna bietet er Raum für Erholung und Genuss. Besonders interessant ist ein kleines Baudenkmal im Großböhlaer Park. Eine mehr als hundertjährige Begräbnisstätte der einstigen Herren auf Großböhla.
Die nahe liegenden Städte Dahlen, Oschatz und Torgau sind schnell und gut zu erreichen.
Die gepflegte 2 Zimmer Wohnung mit guter Ausstattung und einer Wohnfläche von ca. 55 qm und einer Grundfläche von ca. 68 qm ist praktisch und großzügig geschnitten. Sie verfügt über einen Balkon und einen Kellerraum sowie einen PKW Stellplatz vor dem Haus. Im Keller befindet sich zu jeder Wohneinheit ein separater Kellerabteil und ein Hauswirtschaftsraum.
Ausstattung der Wohnung :
-Bad mit Dusche und WC
-Bodenbeläge bestehend aus Fliesen und Laminat
-Kunststofffenster Doppelisolierverglasung
-Dachschrägen Fenster aus Holz
-Balkon mit Sicht auf die Wohnsiedlung
Die Wohnung ist seit 01.09.2021 vermietet.
Die Nettokaltmiete beträgt monatlich 230,00 Euro.
Potential an Mietanpassung ist gegeben.
Machen Sie sich ein eigenes Bild und lassen Sie sich von dem Angebot überzeugen. Kontaktieren Sie uns unter 0341/1247815.
Weitere ausführliche Details besprechen wir gern persönlich und vereinbaren einen Besichtigungstermin mit Ihnen.
| Objekt ID: | 1933 |
| Kaufpreis: | 46.000,00 EUR |
| Hauskosten: | 350,00 EUR |
| Jährl. Mieteinnahmen (Ist): | 2.760,00 EUR |
| Dachform: | Satteldach |
| Bauweise: | massiv |
| Befeuerung: | Öl |
| Zimmer: | 2 |
| Schlafzimmer: | 1 |
| Badezimmer: | 1 |
| Wohnfläche: | 55,79 m² |
| Nutzfläche: | 77 m² |
| Etage: | 3 / 3 |
| Baujahr: | 1995 |
| Objektzustand: | gepflegt |
| Käuferprovision: | 2.800,00 € inkl. ges. MwSt. (in Höhe von derzeit 19 %) |
| X-fache (Kaufpreis bez. auf Jahresmiete): | 16.67 |
| Anzahl Außenstellplätze: | 1 |
| Stellplätze: | 1 |
| Balkone: | 1 |
| Vermietbare Fläche: | 55,79 m² |
| Energieausweis gültig bis: | 23.08.2034 |
| Energieausweis-Jahrgang: | ab Mai 2014 |
| Energieausweis-Gebäudeart: | Wohngebäude |
| Distanz zum Kindergarten: | 0,9 km |
| Distanz zur Grundschule: | 5,0 km |
| Distanz zur Realschule: | 5,0 km |
| Distanz zum Gymnasium: | 7,0 km |
| Distanz zu Einkaufsmöglichkeiten: | 5,0 km |
| Heizungsart: | Zentralheizung |
| Befeuerungsart: | Öl |
| Wert des Endenergiebedarfs: | 130,90 kWh/(m²*a) |
| Art des Energieausweises: | Verbrauch |
| Energieeffizienzklasse: | E |
- Dahlen/ Großböhla
- DG-Wohnung
- 55,79 m²
- 2 Zimmer
- 1 Schlafzimmer
- 1 Badezimmer
04774 Dahlen/ Großböhla
Die genaue Adresse teilen wir Ihnen auf Anfrage gerne mit.
- Jenny Fengler
- j.fengler@ikm-eg.de
- +493411247815
- www.fengler.ikm-eg.de














